
$303,000 USD
HAVE QUESTIONS?
The Residences at Coverley – Modern Homes for Sale in Barbados
Looking for property for sale in Barbados? Discover The Residences at Coverley—a thoughtfully designed, turnkey community developed by the creators of the Villages at Coverley. Located in a convenient and secure master-planned neighbourhood, these brand-new homes blend comfort, style, and investment potential.
New Homes for Sale in Barbados – Available Now
Construction began in January 2025, and phase one includes a range of modern homes:
Standalone villas and stylish townhouses.
One- and two-story floor plans.
3- and 4-bedroom options.
Designed for families, professionals, and investors alike.
These Barbados homes for sale are built with quality finishes, energy efficiency, and functionality in mind.
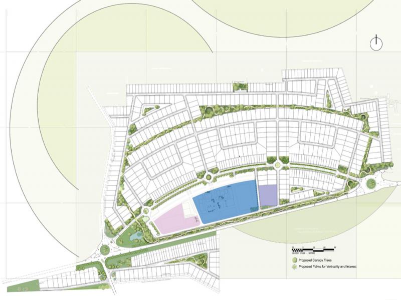
A Safe, Family-Friendly Community
The Residences at Coverley are designed to offer a vibrant and peaceful lifestyle. The community includes:
Landscaped green spaces and pocket parks.
Children’s play areas.
Sports courts and outdoor fitness zones.
Shaded seating and picnic spots.
A scenic walking trail lined with native trees and flowering plants.
Each home comes with its own planted tree, promoting a green, sustainable environment.
Featured Model – Cascade:
Cascade Home Design – a stylish three-bedroom, two-and-a-half-bathroom residence ideal for modern Caribbean living.
Open-Plan Layout – spacious interiors designed for comfort, natural light, and easy flow between living areas.
Fully Equipped Kitchen – contemporary design complete with quality appliances for everyday convenience.
Master Suite Retreat – includes a walk-in closet and private ensuite, creating the perfect sanctuary.
Outdoor Living – enjoy a large patio for entertaining or relaxing in the warm Barbados climate.
Practical Features – paved parking area and fully fenced backyard for privacy and security.
Landscaped Gardens – beautifully designed green spaces to complement your new Barbados home.
Brand-New Town Square Coming Soon
A modern Town Square will be the heart of the community, offering:
Shaded outdoor lounges
Restaurants, cafés, and local shops
A supermarket
Open green areas for relaxing and socialising
Plus, residents are just minutes from the existing Villages at Coverley Town Square, known for its lively atmosphere, food spots, and retail outlets.
Prime South Coast Location
This new development is ideally located just minutes from:
Beautiful south coast beaches
Restaurants and nightlife
Golf courses and tennis clubs
Top schools, medical centres, and other essentials
Whether you're looking for a family home in Barbados, a retirement property, or a vacation rental investment, this location offers everything you need.
Great Investment Opportunity
These Barbados properties offer strong rental potential:
Projected rental yields: 4% to 6%
Ideal for long-term rentals or holiday lettings
Attractive off-plan pricing now available
Note: Homes are being sold off-plan. Site prep and infrastructure are underway. Prices are subject to change. Contact us for current availability and pricing.
Available Home Models
Model Name | Level | Bedrooms | Bathrooms |
---|---|---|---|
MEADOWVIEW | Single-level | 3 | 2 |
SERENE | Single-level | 4 | 2 |
SYCAMORE | Single-level | 3 | 2 |
OAKRIDGE | Single-level | 3 | 2 |
ROSEWOOD | Two-level | 3 | 2.5 |
OASIS | Two-level | 4 | 3 |
EVERGREEN | Two-level | 3 | 2.5 |
CASCADE | Two-level | 3 | 2.5 |
Images are computer-generated and for illustrative purposes only.
Whether you're relocating, investing, or retiring, Barbados real estate continues to offer value and lifestyle appeal.
Get in Touch
Looking to learn more or book a site tour?
Contact us today to find out more about homes for sale at The Residences at Coverley and let us help you find your dream property in Barbados.
If you are interested in The Residences at Coverley, contact us today.
Email: [email protected]
Barbados: +246-432-6307
UK: +44 (0)333 9398 246
USA/Canada: +1 347 707 1195
For villas to rent in Barbados please visit: barbadosdreamvillas.com
For long term rentals visit longtermrentalsbarbados.com
To browse our properties for sale in the rest of the world visit worldwidedreamproperties.com
Browse all of our properties for sale in Christ Church
Find Your Dream Property in Barbados
Amenities
- Car Parking on site
- Dryer
- Modern Kitchen
- Refrigerator
- Stove
- Walk-In Closet
- Pets Allowed
- Fenced